Member of the A1 Group
II. District, 4 bedroom family house

District II.

1,523,900

4,482 / sqm

5

Rooms

beds

4

Bedrooms

sqm

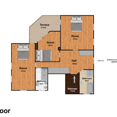
340

Approx sqm

II. District, 4 bedroom family house

District II.

sold
Print

1,523,900

HUF 590,000,000

5

Rooms

beds

4

Bedrooms

340

Approx sqm

Key Details

baths
2
Floor:
1
Sqm price :
4,482 / sqm
Elevator:
No
View:
Panorama
Property condition:
Renovated
Building Condition:
Good condition
Orientation:
Southwest

Ideal For

Long Term Rental

Long Term Rental Establish hassle free income by assign a property manager. The type of the rental reflects the current condition and features of the property as well as the suitability of the location.

Listing Description

A detached villa for sale in Máriaremete, District II, at the end of the forest. The property has many special features, a Victorian marble fireplace, bathrooms with villeroy and boch products, a wellness area with a 6-person jacuzzi and a Finnish sauna, and a comfortable garage for 3 cars.

 

The exterior façade has been repainted, new Hörmann garage doors have been installed and the shingle roof has been replaced for a 30-year warranty. Upstairs are eternal panoramic, large bedrooms and 2 bathrooms. On the middle level there is an acrylic American kitchen with a granite countertop, a dining room and a living room, a pantry, a laundry room and a washbasin. You can enter the garden directly from the living room. The garden is equipped with an automatic irrigation system and is a real miracle. There is also a covered barbecue and seating area.

On the lower level there is the already mentioned wellness area with a Finnish sauna and a 6-person Jacuzzi, as well as a guest room, a boiler / storage room and a comfortable garage for 3 cars. The security of the house is ensured by the alarm and camera system.

 

Amenities

American Kitchen
Balcony
Garage
Jakuzzi
Voice Intercom
Floor Heating
Alarm System
Sauna

District II. - Getaway in the Hills

Budapest’s Second District is home to the city’s most sought-after residential neighborhoods. It marks a rapid shift from the bustling downtown and frequented castle district to peaceful rolling hills. Unique cafes, bars, shopping centers and transportation hubs are clustered from the river to the foot of the hills, and slowly give way to winding tree-lined streets full of gorgeous historic villas. Just a 30-minute ride to the Downtown, the Second is incredibly peaceful, yet approachable, making it a favorite of foreign embassies and the city’s elite.

The
Vibe

Nyüzsgő utcák és romantikus zöldövezet tökéletes keveréke

What to Expect

Quiet neighborhoods, ample green space and scenic strolls. Beautiful residences, close-by nature walks and charming parks are equidistant to the dining and nightlife of downtown Budapest. This district has something for everyone.

What Not to Expect

An abundance of walkable restaurant choices, or a late-night party scene. Although the hills are home to some of the city’s most upscale dining destinations – and even one of Budapest’s oldest cocktail bars – life in the Second District can feel less connected and bustling than in its more urban neighbors like the Third and First Districts.

All square footage measurements are approximate and should be independently verified and confirmed. No guarantee, warranty or representation of any kind is made regarding the completeness or accuracy of such measurements and Matthew & Daniels expressly disclaims any liability in connection with such measurements.